大华翠湖映售楼部-售楼处电话-最新资讯-户型分布图-得房率-精装修标准-项目名称-楼面价-楼栋规划图-备案信息-成交价-昆明楼市-本月房价更新-
扫描到手机,新闻随时看
扫一扫,用手机看文章
更加方便分享给朋友
大华翠湖映
大华翠湖映售楼处电话☎:0871-65658881【售楼处已认证】☘☘☘☘
大华翠湖映售楼中心电话☎:0871-65658881【售楼处已认证】☘☘☘☘
大华翠湖映展示中心电话☎:0871-65658881【售楼处已认证】☘☘☘☘
大华翠湖映营销中心电话☎:0871-65658881【售楼处已认证】☘☘☘☘
金牌置业顾问:18087748759
建筑面积约182-285㎡低密大平层
2025年1月2日己交付 实景现房呈现
1、【项目基本信息】
【开发商】云南莲楹房地产开发有限公司
【占地面积】50亩
【总建筑面积】6.27方
【产品:】143-182-185-258-285㎡
【在售楼栋数】1.2.3.4栋
【规划总户数】227户
【车位配比】1:1.9
【停车位总数】437个(人防34个)
【容积率】2.88
【绿地率】4.77%
【公摊】15%
【得房率】88%
【物业公司】大华物业
【物业费】3.95元/㎡/月
【物业类型】精装大平层住宅
【产权年限】70年
【交房时间】现房
【首付比例】首套15%
2、【区位优势】
板块内弥足珍贵的压轴之地
汇聚城市中最不可复制的珍稀资源,未来十年甚至更久,都难以再有项目能与之匹敌。
城央生态资源:翠湖公园、圆通山公园、莲花池公园三大生态公园
人文底蕴资源:博物馆群、云南省图书馆、云南歌舞剧院、云南美术馆等
名校名师资源:云大附小、师大附小、云大附中、昆一中、云南大学等20余所学府
高端商圈资源:翠湖、顺城、恒隆、同德等高端商圈
专业医疗资源:云大医院、昆华医院、云南省红十字会医院等多所三甲医院

3、【项目概述】
①区域内绝无仅有2.88低密豪宅
稀缺之至,罕见之作,项目距翠湖公园仅一公里,特邀大师团队呈现罕见的低密度珍品,尽享城市繁华与自然宁静的双重馈赠。
2.88央心极质低密
极致人均尊享份额
227席限量收藏
44.7%高绿化率
超宽楼间距日照充足
两梯两户尊贵入户
一字纯板房真南北通透
南向大面宽居住品质高
②大师甄选名贵草木 再现翠湖八景
特邀上海水石设计大师团队,通过巧妙提取经典元素“翠湖八景”和色彩,遍植全球甄选而来日本黑松、橄榄树、红豆杉、羽毛枫、清香木老桩等名贵草木,匹配居者的尊贵身份,达成与自然的深层连接。

③国际顶级品牌奢装,像艺术一样雕琢的空间
因为懂得,所以力求完美,精选德国、意大利高端品牌原装进口装配,极具独特工艺和美学价值的定制材料,让整屋独具匠心,历久弥新。
④壹号圈子,昆明塔尖圈层的尊贵入场券
千金买房,万金买邻,与谁为邻,影响着家庭的视野和格局。
【映会所】茶吧、红酒雪茄吧、健身房、桑拿房,酌翠堂私宴厅正式运营。
⑤传世资产 穿越时间周期
城市的中心土地资源不可再生,是让资产保值和升值的有力保障,决定了高端人居的保值基石与投资潜力,世代传承的不仅仅是居所,更是让家族荣耀与财富的延续,独享尊贵。
⑥品质交付 亲鉴更加安心
2025年1月已完成品质交付,实景现房呈现,所见即所得,美好无需等待。
4、【户型鉴赏】
①【143㎡户型 仅余20席 珍贵难再有】

户型点评:
【非凡横厅 世家风范】阔尺多功能会客厅,阔境之上,彰显世家风范
【三开间朝南 全明通透】开间南向,全明通透,人与阳光自然相处
②【185㎡户型 270°环景边厅 全屋装标升级】

户型点评:
【全明户型 超尺双厅】270度采光面的转角边厅,贯通宽绰阳台,拥揽阳光与风景
【动静分区功能性强】厨房与餐厅形成游空间,LDK一体化设计,空间功能淋漓尽致
【全屋臻装升级世界一线】博世厨电、德系顶级品牌柏丽衣柜/玄关柜、唯宝卫浴(主卫)、高仪五金(主卫)、日本大金空调、史密斯净水,融合无可挑剔的精湛工艺,为品质生活加冕
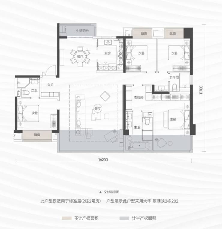
③【182㎡户型 仅有22席 压轴定制出品】
【南向横厅 格局豁达】约6米南向横厅,社交型会客厅
【南北通透 日照充足】双阳台,四开间朝南,全屋采阳均衡
④【285㎡户型 社交型鼎豪大平层】

户型点评:
【极尺宽厅 豁达视野】270°采光IMAX方厅匹配主人气度无界会客、居家
【可游动线 灵活高效】全屋可洄游式布局,家务、宴请、会客动线各自独立环绕
⑤【260㎡户型 终极改善家庭之选】

户型点评:
【奢阔玄关 尊崇入户】巴西进口高定奢石,让每一次出入尽享尊崇礼遇
【巨幕横厅 大家风范】约7.7米巨幕横厅,登人生质感,瞰他人未见之境
大华翠湖映售楼处电话☎:0871-65658881【售楼处已认证】☘☘☘☘
大华翠湖映售楼中心电话☎:0871-65658881【售楼处已认证】☘☘☘☘
大华翠湖映展示中心电话☎:0871-65658881【售楼处已认证】☘☘☘☘
大华翠湖映营销中心电话☎:0871-65658881【售楼处已认证】☘☘☘☘
金牌置业顾问:18087748759
声明:本文由入驻焦点开放平台的作者撰写,除焦点官方账号外,观点仅代表作者本人,不代表焦点立场。
