昆明【融城昆明湖】楼盘优缺点全剖析!看完融城昆明湖介绍你就明白了!

搜狐焦点昭通站 2025-10-19 08:28:00
用手机看
扫描到手机,新闻随时看

扫一扫,用手机看文章
更加方便分享给朋友

融城昆明湖售楼处咨询专线0871-6565-8881【售楼中心】金牌置业顾问18087748759

融城昆明湖

融城昆明湖售楼处电话☎:0871-65658881【售楼处已认证】☘☘☘☘

融城昆明湖售楼中心电话☎:0871-65658881【售楼处已认证】☘☘☘☘

融城昆明湖展示中心电话☎:0871-65658881【售楼处已认证】☘☘☘☘

融城昆明湖营销中心电话☎:0871-65658881【售楼处已认证】☘☘☘☘

金牌置业顾问:18087748759

项目在售产品:

147㎡-218㎡城市华宅:【毛坯】

开发商:云南城投

总占地面积:200万㎡

总建筑面积:500万㎡

总容积率:3.5

建筑密度:21%

绿化率:40%

产权年限:70年

物业:云南城投物业

物业费:1.98元/㎡

停车位:2132个

车位配比:1:1.73

总户数:1227户

首付/贷款: 首套20%;

贷款银行:基本都有

利率:首套5.4%,二套5.7-5.8%;

交房时间:2021年9月30日

昆明湖项目卖点:

1⃣ 现房❗现房❗现房❗即买即住,一梯一户设计

2⃣就读名校,公立公办,云师大【学区房】房户一致

3⃣占据北部山水新城核心位置,瀑布公园旁。

二.区位图 楼栋分布图✅✅✅

三.周边配套✅✅✅

1、交通配套:

大型交通站点距雨树上村108米

距龙江西路口(昆澜街)206米等

龙头街地铁站1.9公里,北部汽车站地铁站 ,公交昆明瀑布公园136路; Z1路300米

?2、商业配套:大型商业设施,距孕婴堡母婴生活馆36米,距日新达生活超市(昆明湖店)昆明旭辉商业广场,茨坝农贸市场,日新达生活超市-金水湾店

3、教育配套:距云南师范大学实验中学附属幼儿园508米

距强兴小学659米等

?幼儿园:融和昆明湖幼儿园

?小学:昆明湖校区小学部

?初中:云师大实验中学

4、医疗配套:云南农业大学-校医院,云南农业大学-卫生科

四、项目介绍✅✅✅

昆明湖湖珀位于盘龙区北部山水新区,是集山水生活、风情休闲街区、生态办公等为一体的综合性大型社区,周边医疗、景观和交通等配套资源都较为丰富齐全,公园环伺,生态环境非常好,是休闲宜居的不错选择。

自身配套:项目自身配备了约30万㎡的综合性商业体,沿龙江西路非是常有特色的

临瀑西班牙风情商业街,叫“云瀑天街”,以观景、养生、娱乐为主的,比如酒吧、茶室、健身房、spa会所等等;项目周边靠近北京路规划有一个大型商业综合体,里面

囊括了电影院、美食城和大型商超,可以满足业主们吃喝玩乐和日常生活的购物需求;

周边商业配套:项目三至五公里范围内,即可畅想和谐广场、嘉年华、中汇沃尔

玛、北辰财富中心、欣都龙城、同德等多

个醇熟商圈,满足“一站购物、一家休闲、一天逛街、随时会客”的城市生活方式。

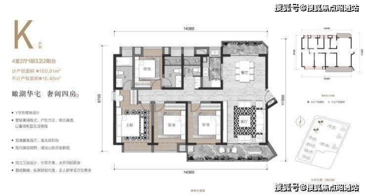
五、在售户型图

融城昆明湖售楼处电话☎:0871-65658881【售楼处已认证】☘☘☘☘

融城昆明湖售楼中心电话☎:0871-65658881【售楼处已认证】☘☘☘☘

融城昆明湖展示中心电话☎:0871-65658881【售楼处已认证】☘☘☘☘

融城昆明湖营销中心电话☎:0871-65658881【售楼处已认证】☘☘☘☘

金牌置业顾问:18087748759

声明:本文由入驻焦点开放平台的作者撰写,除焦点官方账号外,观点仅代表作者本人,不代表焦点立场。