邦泰悦九章【2025昆明新房推荐】→一房一价→容积率→装修交付→户型展示
扫描到手机,新闻随时看
扫一扫,用手机看文章
更加方便分享给朋友
邦泰悦九章
邦泰悦九章售楼处电话☎:0871-65658881【售楼处已认证】
邦泰悦九章售楼中心电话☎:0871-65658881【售楼处已认证】
邦泰悦九章展示中心电话☎:0871-65658881【售楼处已认证】
邦泰悦九章营销中心电话☎:0871-65658881【售楼处已认证】
金牌置业顾问:18087748759

一、项目概况
规模:总占地面积约120亩,容积率一期3.64、整体3.69,绿化率37%-40%
物业类型:高层住宅+小高层(含顶跃产品),规划22栋住宅(一期13栋)
交房时间:2025年10月(部分楼栋为准现房)

二、价格与销售动态
参考均价
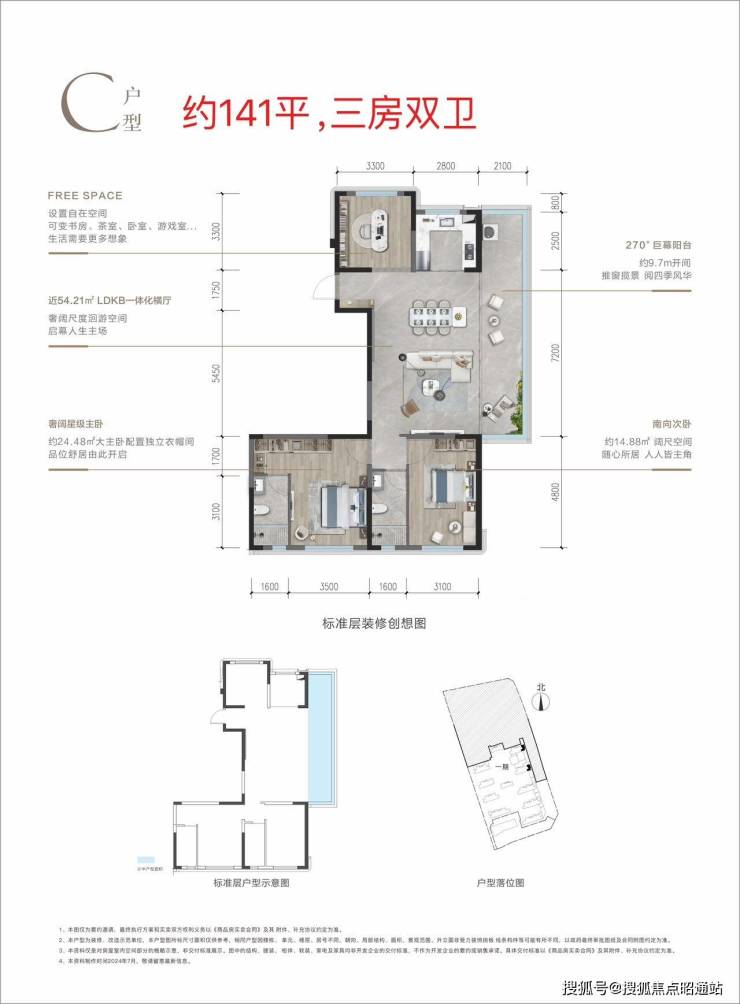
一期:7388-9500元/㎡(建面138-141㎡)
二期:8200-11200元/㎡(建面127-143㎡)
特惠房源:部分三居8字头起(建面约113㎡)
在售户型:主推建面113-208㎡,含三居、四居及顶跃户型




三、户型与设计
主力户型:
三居:113-132㎡(高层,2梯4-6户)
四居:138-143㎡(小高层,1梯2户)
顶跃:210-325㎡(稀缺改善型)
设计亮点:
封窗交付,外立面统一公建化设计
部分房源得房率超100%(公摊低至0%)
四、配套资源
教育:
自建9班公立幼儿园(地块内)
云师大附小(一梯队,2025年9月开学)
商业:吾悦广场、花千坊
医疗:昆明医科大附属医院(三甲,直线300米)
交通:地铁1号线春融街站、高铁站
生态%
声明:本文由入驻焦点开放平台的作者撰写,除焦点官方账号外,观点仅代表作者本人,不代表焦点立场。
