昆明江东永和府降价了吗-户型图-学区-售楼部-什么时候交房-布局-房价-实时热搜-售楼中心已认证
扫描到手机,新闻随时看
扫一扫,用手机看文章
更加方便分享给朋友
江东永和府
江东永和府售楼处电话☎:0871-65658881【售楼处已认证】☘☘☘☘
江东永和府售楼中心电话☎:0871-65658881【售楼处已认证】☘☘☘☘
江东永和府展示中心电话☎:0871-65658881【售楼处已认证】☘☘☘☘
江东永和府营销中心电话☎:0871-65658881【售楼处已认证】☘☘☘☘
金牌置业顾问:18087748759
项目基本信息
开发商:江东地产
占地面积:46726.67㎡
容积率:5.37
绿化率:25.03%
梯户比:2T5H
面积段:126-215㎡
装修情况:精装交付
物业管理:江东地产物业
物业费1.5元/月/㎡(不包括电梯费和二次加压费)
项目区位
项目作为江东地产深耕北市区的又一力作,不论是商业体量还是项目地段都非常具有优势。项目紧邻昆明市第一人民医院北市区分院,坐落在北京路上,项目门口就是金安小区公交车站,而距离项目约500米处就是地铁2号线霖雨桥站,交通十分便利。再者项目周边不论是商业环境还是居住环境都发展的十分成熟。
项目配套
教育
尊重,尊敬,传承了儒雅文风
人文学术籍的香味不是学。永和府艾尔西幼儿园、月牙塘小学、昆明第八中学、云南财经大学附属中学等多种优质教育资源汇集在一起。全年龄教育在侧面。从小就培养孩子的大气格局,创造优秀的教育家,培育美好的未来。
医疗
丰饶医疗和护航健康生活
北城区唯一的三级甲等医院,北城区第一人民医院,北城区甘美国际医院,中国人民解放军五三三医院瑞奇德医院、红云医院、圣爱中医博物馆等医疗资源,始终关心您的身体状况,方便理疗,为您和您家人的健康保驾护航。

商业
重塑商业格局
永和府的辉煌是与生俱来的。虽然它已经有了无限的光芒,但这座城市的辉煌愿意为这座伟大的建筑锦上添花。中汇商圈、嘉年华购物中心、和谐世纪、北辰财富中心、新都龙城、同德昆明广场等六昆明广场等六个繁华商圈环绕,自有商业综合体加冕,全面满足区域人群需求。
项目拥有30万平方米的业务,汇集了高端影院、大型超市、购物中心、食品、儿童娱乐城市、健身中心,集食品、饮料、娱乐、购物一站式消费为一体,奢华生活就在眼前。项目领导铸造超高层双塔建筑,以世界级商业模式与地标骄傲,以极端视野引领市中心首席商业旗舰,未来将配备超级五星级酒店、七星环星大堂,打造全球企业战略高地,为精英圈创造空间,与高峰生活相辅相成。

生态
工匠们的美学之作立序生活礼遇
千年盘龙江连接着昆明的历史和未来。该项目可以俯瞰盘龙江汹涌的魅力。周边有月牙塘市政公园、黑龙潭市政公园、植物园、金殿公园、世博园、野生动物园等生态公园,悠闲地生活在这里,始终享受着诗意优雅的生活。
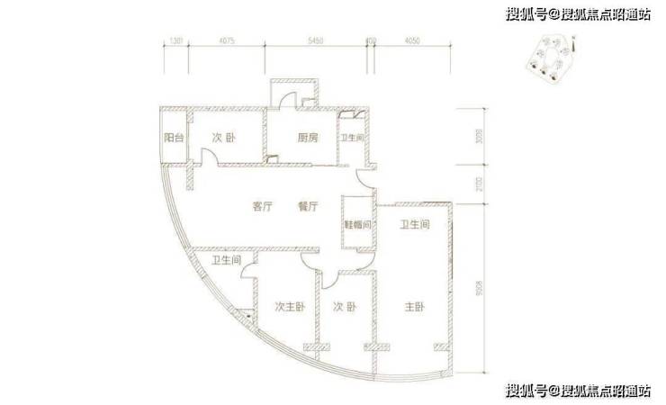
户型鉴赏
项目总结
江东永和府是一个令人向往的居住地。它不仅提供了高品质的住房,还拥有丰富的配套设施和优美的自然环境。居民在这里可以享受到舒适宜人的生活,并且可以随时融入到这个美丽城市的文化和活力中。选择江东永和府,就是选择了一种高品质的生活方式。这里不仅是一个宜居的居住地,更是一个满足人们对美好生活向往的完美场所。相信在这里居住的每一位居民都能感受到昆明的独特魅力,并且收获到属于自己的幸福和满足。
——【江东·永和府】——
建面约123-215㎡环幕大平层
盘龙江·双地铁口·臻装现房
江东永和府售楼处电话☎:0871-65658881【售楼处已认证】☘☘☘☘
江东永和府售楼中心电话☎:0871-65658881【售楼处已认证】☘☘☘☘
江东永和府展示中心电话☎:0871-65658881【售楼处已认证】☘☘☘☘
江东永和府营销中心电话☎:0871-65658881【售楼处已认证】☘☘☘☘
金牌置业顾问:18087748759
声明:本文由入驻焦点开放平台的作者撰写,除焦点官方账号外,观点仅代表作者本人,不代表焦点立场。
