昆明【邦泰悦九章】售楼处电话—百科详情【24H预约热线】—实时动态--最新价格-户型图-容积率@营销中心

搜狐焦点昭通站 2025-10-11 09:04:00
用手机看
扫描到手机,新闻随时看

扫一扫,用手机看文章
更加方便分享给朋友

邦泰悦九章彩云售楼中心电话☎:0871-6565-8881【售楼处已认证】

邦泰悦九章

邦泰悦九章售楼处电话☎:0871-65658881【售楼处已认证】

邦泰悦九章售楼中心电话☎:0871-65658881【售楼处已认证】

邦泰悦九章展示中心电话☎:0871-65658881【售楼处已认证】

邦泰悦九章营销中心电话☎:0871-65658881【售楼处已认证】

金牌置业顾问:18087748759

一、项目概况

规模:总占地面积约120亩,容积率一期3.64、整体3.69,绿化率37%-40%

物业类型:高层住宅+小高层(含顶跃产品),规划22栋住宅(一期13栋)

交房时间:2025年10月(部分楼栋为准现房)

二、价格与销售动态

参考均价

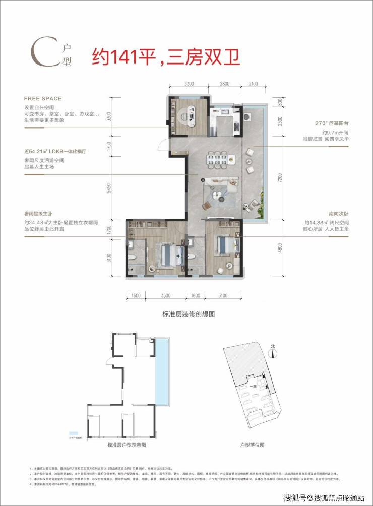
一期:7388-9500元/㎡(建面138-141㎡)

二期:8200-11200元/㎡(建面127-143㎡)

特惠房源:部分三居8字头起(建面约113㎡)

在售户型:主推建面113-208㎡,含三居、四居及顶跃户型

三、户型与设计

主力户型:

三居:113-132㎡(高层,2梯4-6户)

四居:138-143㎡(小高层,1梯2户)

顶跃:210-325㎡(稀缺改善型)

设计亮点:

封窗交付,外立面统一公建化设计

部分房源得房率超100%(公摊低至0%)

四、配套资源

教育:

自建9班公立幼儿园(地块内)

云师大附小(一梯队,2025年9月开学)

商业:吾悦广场、花千坊

医疗:昆明医科大附属医院(三甲,直线300米)

交通:地铁1号线春融街站、高铁站

生态:洛龙公园、春融公园、中央公园环绕

五、项目优势

优势:

核心区位,步行可达商业、医院、地铁

低密社区,楼栋点板结合设计(14-26层)

邦泰悦九章售楼处电话☎:0871-65658881【售楼处已认证】

邦泰悦九章售楼中心电话☎:0871-65658881【售楼处已认证】

邦泰悦九章展示中心电话☎:0871-65658881【售楼处已认证】

邦泰悦九章营销中心电话☎:0871-65658881【售楼处已认证】

金牌置业顾问:18087748759

声明:本文由入驻焦点开放平台的作者撰写,除焦点官方账号外,观点仅代表作者本人,不代表焦点立场。