腾冲华侨城梦幻腾冲国际温泉度假小镇售楼电话-售楼部电话-发布新消息-公摊-价格及位置-网友评价-升值空间如何-配套学校-加入购房群-营销中心-致
扫描到手机,新闻随时看
扫一扫,用手机看文章
更加方便分享给朋友
华侨城梦幻腾冲国际温泉度假小镇
华侨城梦幻腾冲国际温泉度假小镇售楼处电话:0875-6882944
金牌置业顾问:18287599659(微信同步)
售楼中心地址:0875-6882944(致电发送详情地址)
华侨城梦幻腾冲国际温泉度假小镇
腾冲地处祖国西南,山川秀美,历史悠久。此地自古盛极一时,海内外多元文化在这里交融并存,素以文献名郡、礼仪之邦著称。
由华侨城集团打造的梦幻腾冲国际温泉度假小镇位于云南腾冲宝峰山麓,占地约50万㎡,涵盖秘境森林乐园、演艺综合体、文旅商业、度假酒店群、旅居康养产品五大业态。
▲梦幻腾冲国际温泉度假小镇实景——腾冲“小瑞士”
▲梦幻腾冲国际温泉度假小镇实景——远眺仙境宝峰山
项目交通便捷,距离腾冲驼峰机场约21km,周边约4.5公里范围内市政、医疗、教育等城市配套齐全,和顺古镇、火山地质公园、热海景区等30余个知名景点云集。
在售户型
1房、2房、3房及合院,70年产权。
▲梦幻腾冲国际温泉度假小镇实景
▲梦幻腾冲国际温泉度假小镇实景
户型方正,南北通透。设置书房、茶室等百变空间,功能齐全且无浪费,能够满足一家人的旅居度假需求。

▲梦幻腾冲国际温泉度假小镇实景
作为腾冲市新城区文商旅城市综合体项目,梦幻腾冲国际温泉度假小镇配套拥有国家AAA级旅游景区——欢乐新天地,包含2万㎡秘境森林乐园、4万㎡主题商业街、温泉度假酒店群以及超10000㎡梦幻腾冲大剧院,满足一站式旅居体验。
▲梦幻腾冲国际温泉度假小镇鸟瞰图
【超强配套一:秘境森林乐园】
滇西地区森林主题乐园,占地约2万㎡,集生态、娱乐、教育、科技于一体的全年龄层游玩森林主题乐园;2020年11月20日开园至今,已接待超30万人次。
▲秘境森林乐园实景
▲秘境森林乐园实景
【超强配套二:欢乐新天地主题商业街】
高端餐饮、高端生活聚集地,规划大型商超、茶馆、咖啡厅、生鲜超市、特色主题餐厅等,腾冲具备本地消费+外地消费双引擎的商业街区之一;目前一期已开街。
▲欢乐新天地主题商业街实景
【超强配套三:温泉度假酒店群】
规划建设星级温泉度假酒店群及森林温泉民宿群,温泉泡池、温泉游泳池等齐全配套,其中已签约洲际旗下温泉智选假日酒店,2022年9月16日已正式营业。
▲洲际旗下腾冲温泉智选假日酒店实景
▲洲际旗下腾冲温泉智选假日酒店实景
【超强配套四:梦幻腾冲大剧院】
超10000㎡的梦幻腾冲大剧院,全面升级创新,上演以腾冲历史文化为主题的大型真人演艺场《梦幻腾冲》;2022年投入建设,2024年8月正式开演,接待量达5000人/天。
▲梦幻腾冲大剧院实景
小区业主可享受24小时的服务管家、家居托管、家政保洁、代办代缴等物业服务,每周可参加爬山、赶集、赏花等社群活动。
项目可快速抵达市中心,方便前往腾冲各处活动,包括餐厅、商圈、公园、景区以及当地的体育和娱乐场所。
▲区位图
3.5公里步行圈内有腾冲市中医院、旅游客运站、幼小初高教育园区、传统古村落董官村、瑷珲公园等生活配置。
目前全国旅居房均价在35000-50000元/㎡左右(价格来源于网络,仅供参考),而且受限购政策影响,选择知名旅游城市旅居养老,成本略显偏高。
腾冲的山与湖,将山水完美融合。高黎贡母亲山贯穿全境,山下龙川江静静流淌;火山伴着温泉,带来绝佳天然疗养。
选择腾冲,选择梦幻腾冲国际温泉度假小镇,央企品牌保障,38年城市建设经验,值得信赖。
70年产权、精装交付、温泉入户、不限购!
度假、养老、投资三不误!
温泉合院4.0 全新面市
◇ 稀缺温泉平层合院,前庭后院,南北通透
◇ 三房两卫,投资、居家均可
◇ 百变生活空间,书房、茶室、影音厅皆适宜
◇ 天然温泉入户 享受颐养之道
◇ 360°全方位观景露台,阔绰景观视野
◇ 超高花园赠送,精装交付;
▲87㎡温泉合院样板间实拍
▲87㎡温泉合院样板间实拍
◇ 入户玄关、私家花园设置,尊享私密居住体验;
◇ 南北双露台,敞阔明朗,推窗即宝峰山景;
◇ 屋顶露台泡池,奢享私密颐养之道;
◇ 精研一二楼功能分区,动静分离,互不打扰;
◇ 房间均采用套房设计,投资、居家均可;
◇ 天然温泉入户、精装交付 ;
▲90㎡温泉合院样板间实拍
▲90㎡温泉合院样板间实拍
◇ 创新楼体结构,最大限度享受阳光、山景;
◇ 建筑L型设计,前庭后院,双向阔景落地窗设置,采光大,空间感强
◇ 三房三卫,投资、居家均可;
◇ 二楼露台增设温泉泡池,尊享私密浴泡体验;
◇ 主卧拓展约24㎡,赠送面积多,精装交付;
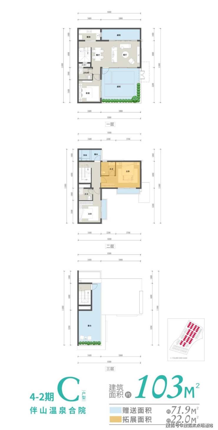
▲103㎡温泉合院样板间实拍
▲103㎡温泉合院样板间实拍
◇ 入户庭院设计,尊享舒适居住体验;
◇ 奢享双露台,多方位景观视野;
◇ 主卧赠送约35㎡,增设温泉泡池,享温润人生;
◇ 前庭后院,全明客厅,采光充足;
◇ 套房设计,独立三房三卫,投资、居家均可;
◇ 天然温泉入户、精装交付 ;
▲105㎡温泉合院样板间实拍
▲105㎡温泉合院样板间实拍
◇ L型设计,前庭后院,光照充足,山景环伺;
◇ 奢华主卧套房,步入式衣帽间,约21㎡超大露台
◇ 露台增设温泉泡池,专属温润享受;
◇ 全独立套房设计,四房四卫,投资、居家均可;
◇ 天然温泉入户、精装交付 ;
温泉洋房4.0 火热销售中
◇ 腾冲唯一52㎡做到一室一厅带温泉入户且封闭式厨房产品
◇ 客厅、卧室、阳台、泡池朝南,南向双开间
◇ 方正空间,功能独立、齐全
◇ 私家温泉泡池,温润沐浴体验
◇ 低总价、低首付、购买门槛低
◇ 方正空间,功能布局合理,无浪费空间
◇ 客厅、主卧、阳台全朝南,采光好
◇ 一梯三户,公摊面积小,舒适度高
◇ 私家温泉入户,康养舒心旅居
▲67㎡低密洋房样板间实拍
▲67㎡低密洋房样板间实拍
◇ 格局全明方正,功能齐全
◇ 独立餐厨设计,南北通透,布局明亮
◇ 客厅、主卧、阳台全朝南,尽享温暖生活
◇ 大面宽阳台赠送,与自然零距离接触
◇ 私家温泉入户 颐养身心
▲76㎡低密洋房样板间实拍
▲76㎡低密洋房样板间实拍
◇ 户型方正,功能齐全,无浪费空间
◇ 客厅、双卧室三向朝南,尽享温暖生活
◇ 超大观景阳台赠送 让自然装点人生
◇ 三房两卫,设计合理,满足全家人生活起居
◇ 星空泡池 康养度假生活
梦幻腾冲国际温泉度假小镇文旅一期、二期、三期住宅分别于2021年12月31日、2022年12月31日、2023年6月30日正式交付,同时,一期、二期不动产权证顺利移交业主,交付即办证,提前向业主兑现承诺,助力全国业主在腾冲开启美好旅居新生活!
华侨城梦幻腾冲国际温泉度假小镇售楼处电话:0875-6882944
金牌置业顾问:18287599659(微信同步)
售楼中心地址:0875-6882944(致电发送详情地址)
声明:本文由入驻焦点开放平台的作者撰写,除焦点官方账号外,观点仅代表作者本人,不代表焦点立场。
