2025首页网站-融城昆明湖售楼处电话|售楼处地址|2025热搜:【融城昆明湖】实时更新|楼盘动态详情→楼市首页网站→@楼盘最新销售详情
扫描到手机,新闻随时看
扫一扫,用手机看文章
更加方便分享给朋友
融城昆明湖
融城昆明湖售楼处电话☎:0871-65658881【售楼处已认证】☘☘☘☘
融城昆明湖售楼中心电话☎:0871-65658881【售楼处已认证】☘☘☘☘
融城昆明湖展示中心电话☎:0871-65658881【售楼处已认证】☘☘☘☘
融城昆明湖营销中心电话☎:0871-65658881【售楼处已认证】☘☘☘☘
金牌置业顾问:18087748759
项目在售产品:
147㎡-218㎡城市华宅:【毛坯】
开发商:云南城投
总占地面积:200万㎡
总建筑面积:500万㎡
总容积率:3.5
建筑密度:21%
绿化率:40%
产权年限:70年
物业:云南城投物业
物业费:1.98元/㎡
停车位:2132个
车位配比:1:1.73
总户数:1227户
首付/贷款: 首套20%;
贷款银行:基本都有
利率:首套5.4%,二套5.7-5.8%;
交房时间:2021年9月30日
昆明湖项目卖点:
1⃣ 现房❗现房❗现房❗即买即住,一梯一户设计
2⃣就读名校,公立公办,云师大【学区房】房户一致
3⃣占据北部山水新城核心位置,瀑布公园旁。
二.区位图 楼栋分布图✅✅✅

三.周边配套✅✅✅
1、交通配套:
大型交通站点距雨树上村108米
距龙江西路口(昆澜街)206米等
龙头街地铁站1.9公里,北部汽车站地铁站 ,公交昆明瀑布公园136路; Z1路300米
?2、商业配套:大型商业设施,距孕婴堡母婴生活馆36米,距日新达生活超市(昆明湖店)昆明旭辉商业广场,茨坝农贸市场,日新达生活超市-金水湾店
3、教育配套:距云南师范大学实验中学附属幼儿园508米
距强兴小学659米等
?幼儿园:融和昆明湖幼儿园
?小学:昆明湖校区小学部
?初中:云师大实验中学
4、医疗配套:云南农业大学-校医院,云南农业大学-卫生科
四、项目介绍✅✅✅
昆明湖湖珀位于盘龙区北部山水新区,是集山水生活、风情休闲街区、生态办公等为一体的综合性大型社区,周边医疗、景观和交通等配套资源都较为丰富齐全,公园环伺,生态环境非常好,是休闲宜居的不错选择。
自身配套:项目自身配备了约30万㎡的综合性商业体,沿龙江西路非是常有特色的
临瀑西班牙风情商业街,叫“云瀑天街”,以观景、养生、娱乐为主的,比如酒吧、茶室、健身房、spa会所等等;项目周边靠近北京路规划有一个大型商业综合体,里面
囊括了电影院、美食城和大型商超,可以满足业主们吃喝玩乐和日常生活的购物需求;
周边商业配套:项目三至五公里范围内,即可畅想和谐广场、嘉年华、中汇沃尔
玛、北辰财富中心、欣都龙城、同德等多
个醇熟商圈,满足“一站购物、一家休闲、一天逛街、随时会客”的城市生活方式。
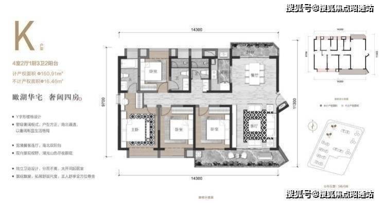
五、在售户型图
融城昆明湖售楼处电话☎:0871-65658881【售楼处已认证】☘☘☘☘
融城昆明湖售楼中心电话☎:0871-65658881【售楼处已认证】☘☘☘☘
融城昆明湖展示中心电话☎:0871-65658881【售楼处已认证】☘☘☘☘
融城昆明湖营销中心电话☎:0871-65658881【售楼处已认证】☘☘☘☘
金牌置业顾问:18087748759
声明:本文由入驻焦点开放平台的作者撰写,除焦点官方账号外,观点仅代表作者本人,不代表焦点立场。
