项目所处片区为传统富人区,客群多为昆明高端人群,周边物业多是洋房别墅高端低密项目如九夏云水,公园1903等;项目周边还有滇越铁路主题公园、梦幻联邦主题乐园、世界级冰雪世界、超大海洋乐园等,让您周末的休闲娱乐有…
中铁诺德山海春风
售楼处免费咨询热线:0871-6633-0577【售楼中心】
置业顾问:18288627767(微信同号)
线上预约——尊享优价——售楼处中心——线上唯一售楼处
专业的顾问 ——1对1的服务讲解——让您至享而归
【售楼线上预约处】 售楼处发布:
中国中铁诺德房地产开发有限责任公司:是隶属于中国中铁股份有限公司旗下中铁建工集团的全资子公司。中铁诺德房地产开发有限责任公司是中铁建工集团的房地产旗舰单位,具有房地产开发一级资质,是一家集房地产开发、物业管理、商业运营于一体的现代化房地产企业。
项目整体概况:
项目总占地250亩,容积率1.26;可售21万方,
绿地率40%,建筑密度32%,
产权年限:70年,户数:367套洋房,158套别墅。
为塑造一个高端顶级豪宅提供了优越的先决条件。项目分为四个地块,两个商业地块A11、A13,产品为商墅;两个住宅地块A12、A14,产品为洋房及别墅,洋房为8层,面积为125平米、140平米、160平米(每个户型有15-30平米不等赠送);别墅为2-3层(加地下赠送面积为4-5层);面积为150平米、160平米、200平米(按照1;1以上赠送,实用面积为300-500平米)。

项目四至:项目位于广福路与西福路交叉口北向为广福路(下穿隧道,晚上12点禁止通行),广福路大概50-80米左右距离,中间为我们公司配建的绿地公园;南向为小区规划道路,车流量少,直通草海湿地;东向为西福路,西福路和我们项目中间有条西福河,路离我们项目之间的距离大概60-90米不等,两侧为绿化(您进来园区就可以看到未来就是我们移交政府的园林),对我们项目基本是没有影响的;西侧为环湖路,以及沿滇池将代建约10万方亲水湿地公园,项目周边花园、湿地公园环绕,项目中间这条车道是市政道路,车道宽15米,车流量少,主要是项目内部行车,可直通滇池,湿地。

建筑风格:项目整体设计由世界知名设计公司:汉米敦(泰禾院子及绿城桃花源系列设计单位)设计整体建筑风格以洋房新亚洲、别墅简约徽派相结合。

园林景观:项目景观设计整体意向以“地域化”中式风格为主,打造外有山水,内有乾坤,内外兼修的素雅纯粹中式韵味园林风格。
物业配置:整个项目智能化系统及人性化设备。智能化方面:小区全WIFI 覆盖、天使设备(儿童活动区域配备全天候实时监控,提供实时云端观看功能,家长可随时通过手机、平板、电脑等移动设备查看孩子情况)、背景音乐;人性化方面:设置户外插座(提高业主户外的活动性、效率性)、交流座椅、无障碍设计(无障碍缓坡入户)、适老设计(全区人车分流、老人活动空间指向性明确、标识清晰)、KIDS设计(根据儿童活动的特点确定景物、器械的比例和尺度;活动场地形态丰富,地面做柔性无毒铺装,保护儿童安全;儿童活动区周围,设置家长休憩区,便于看护)、驱蚊器、除霾系统、户外洗手池(儿童活动区旁、慢跑道旁)、高低座椅等。
小区内部交通:小区采用人车分流设计

距离市中心仅5公里;紧邻各大省级行政中心(省委、省政协、市中院等)商业中心(5分钟南市区商业中心南亚风情第一城、爱情海购物公园及1903高档商业休闲中心)周边丰富的教育资源(项目配建正在洽谈的金牛幼儿园及初高中,师大附小金牛校区,昆明三中滇池分校等)完善的医疗配套(5分钟度假区中医院,圣约翰医院,10分钟到云大医院,四十三医院交通便利,四通八达(三横三纵:滇池路连接主城及南市区大通道,西福路至二环、绕城仅需3分钟,直通高速和机场,广福路东西通,)且门口600米处为地铁站,预计明年9月通车(地铁沿线物业升值潜力巨大);
项目所处片区为传统富人区,客群多为昆明高端人群,周边物业多是洋房别墅高端低密项目如九夏云水,公园1903等;项目周边还有滇越铁路主题公园、梦幻联邦主题乐园、世界级冰雪世界、超大海洋乐园等,让您周末的休闲娱乐有更多的选择;
同时项目周边10分钟之内5星级酒店如洲际,华邑,索菲特等商务配套,3公里半径内,生活,休闲,商业,商务应有尽有,可拥有出则繁华、入则宁静的生活方式。

洋房面积127 140 162 每个户型赠送15-30不等,合院(已交房,物业5.3元/㎡,量少)


面积150 160 200,1:1赠送,实得面积300-500,
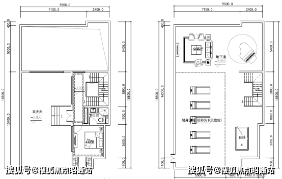
150平米的联排产品,(地下90平米,产权面积合计240平米)赠送约61平米,实得300平米,花园约50-200平米不等。房型设计为4室2厅1厨6卫产品,地上三层,地下二层。地面上主要为起居空间,夹层配有下沉庭院,阳光地下室,下沉3米采光井,负一层设置为休闲娱乐层。
160平米的合院也是我们的明星产品,高赠送:(地下177平米,产权面积合计337平米)赠送约71.24平米,实得约409平米,花园约100-200平米(待最终确定)房型设计为3室2厅1厨6卫,地上二层,地下二层,中间内庭院设计;地面上主要为起居空间,夹层配有下沉庭院,负一层设置为休闲娱乐层。
别墅 栋间距为1:1.5至1:2之间


别墅150平米


别墅160平米

售楼处免费咨询热线:0871-6633-0577【售楼中心】
置业顾问:18288627767(微信同号)
线上预约——尊享优价——售楼处中心——线上唯一售楼处
专业的顾问 ——1对1的服务讲解——让您至享而归
【售楼线上预约处】 售楼处发布: