昆明子君山麓城售楼处电话-预售许可证-备案信息-交房时间-成交价-双十一优惠
扫描到手机,新闻随时看
扫一扫,用手机看文章
更加方便分享给朋友
子君山麓城
子君山麓城售楼处电话☎:0871-65658881【售楼处已认证】☘☘☘☘
子君山麓城售楼中心电话☎:0871-65658881【售楼处已认证】☘☘☘☘
子君山麓城展示中心电话☎:0871-65658881【售楼处已认证】☘☘☘☘
子君山麓城营销中心电话☎:0871-65658881【售楼处已认证】☘☘☘☘
金牌置业顾问:18087748759
楼盘别名:玖云山,子君山麓,湖堤里
所属开发商产品线:昆明万科物业服务有限公司
子君山麓城以昆明原生城央山地为基址,依托山势和植被,在保留原有自然环境下“化蝶重生”:约3000亩巨型规划,超大城市公园为主体为内核,以匠心思考重塑自然与人的和谐共生。子君山麓城总占地约3000亩,其中约1800亩为原生森林植被恢复工程,逾半数的土地将以一个完整的自然界呈现:溪流、池塘、乔木、花草、鸟类、小动物,保留城市最珍贵的绿心。

开发商描述:
云南宗逸置业有限公司成立于2006年04月30日,注册地位于云南省昆明市官渡区小板桥街道办事处中街10号。经营范围包括房地产开发与经营,昆明子君山生态旅游运动及配套工程项目的建设和经营;仓储,货运业务。
物业描述:
万科物业成立于1990年 ,以住宅物业为主提供高品质服务 ,连续十年蝉联行业百强。 作为中国物业管理行业的领跑者,万科物业致力于让更多用户体验物业服务之美好,围绕业主不动产提供全生命周期服务。万科物业会是以住宅物业为主,提供高品质服务的一个品牌。

总栋数:50栋 总户数:972户 产权年限:70年 建筑类型:联拼别墅,叠加别墅,双拼别墅
占地面积:241123平米 建筑面积:414860平米 容积率:1.05
绿化面积:110669 绿化率:45.76% 总车位数:2595 底下车位:2595
车位配比:1:1.2 得房率:98-100% 项目特点:智慧小区人车分流封闭小区
配套介绍
1. 交通地铁4号线广卫站2公里
2. 教育金诺幼儿园、子君中心学堂、师专附属学堂
3. 医疗昆明市第一人民医院星耀医院、昆明市经开人民医院
4. 商业云博购物中心、昆明富康城购物中心、银座商城
5. 休闲大冲公园、王官湿地公园、斗南湿地公
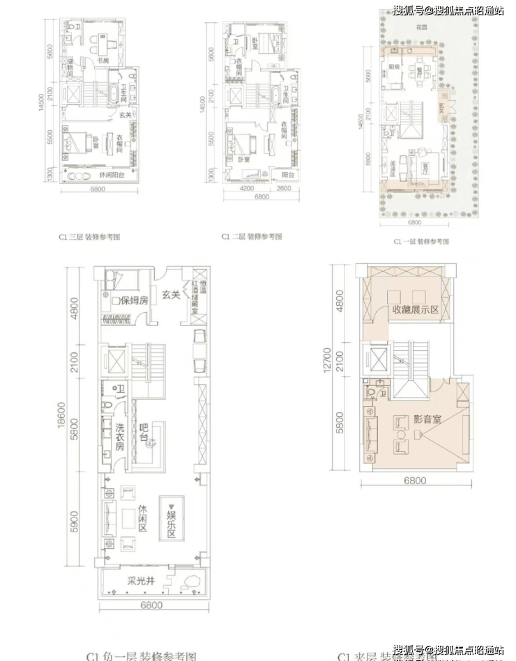
户型鉴赏





子君山麓城售楼处电话☎:0871-65658881【售楼处已认证】☘☘☘☘
子君山麓城售楼中心电话☎:0871-65658881【售楼处已认证】☘☘☘☘
子君山麓城展示中心电话☎:0871-65658881【售楼处已认证】☘☘☘☘
子君山麓城营销中心电话☎:0871-65658881【售楼处已认证】☘☘☘☘
金牌置业顾问:18087748759
声明:本文由入驻焦点开放平台的作者撰写,除焦点官方账号外,观点仅代表作者本人,不代表焦点立场。
