(昆明)2025#义承金川府#首页网站-义承金川府楼盘详情 /户型细节/楼盘价格/售楼处位置
扫描到手机,新闻随时看
扫一扫,用手机看文章
更加方便分享给朋友
义承金川府
义承金川府售楼处电话☎:0871-65658881【售楼处已认证】☘☘☘☘
义承金川府售楼中心电话☎:0871-65658881【售楼处已认证】☘☘☘☘
义承金川府展示中心电话☎:0871-65658881【售楼处已认证】☘☘☘☘
义承金川府营销中心电话☎:0871-65658881【售楼处已认证】☘☘☘☘
金牌置业顾问:18087748759
五华未来·西北新城 高新一小旁/南北通透/1梯2户/近零公摊 1.83容积率,超低密纯板住区
一、项目基础信息
【开发商】义承置业
【区域板块】五华区西北新城
【容积率】1.83
【物业类型】1T2洋房,1T2叠墅
【装修情况】毛坯
【产权性质】住宅产权,70年
【物业公司】承义物业
【物业费】洋房2.6;叠墅3.8
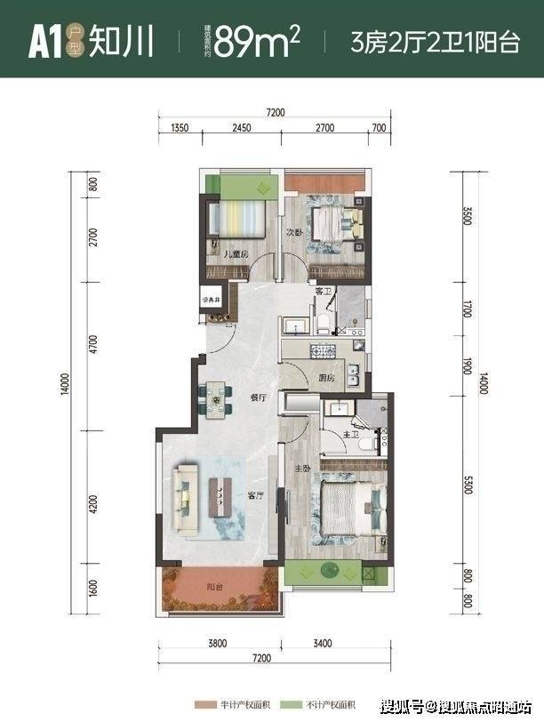
【在售产品】建面约89-123㎡低密花园洋房;建面约140-232㎡高拓展城市叠墅
3、滇池源头,一府金川 义承金川府,择址海源北路之上,“海源”即大海之源,也就是“滇池源头”,上风上水之地。金川府作为义承入滇的首席作品,金川府项目外享繁华,内拥低密生态,打造了西市难得的低密品质社区,以花园洋房、生态叠墅两大产品,全维焕新昆明低密舒居新模式。
三、项目周边配套 ------------------------------------------ 1、商业丨七大商圈,10分钟生活圈 坐拥醇熟商圈中轴,周边汇聚首创奥特莱斯商圈、宜家购物中心、西城时代商圈、吾悦广场商圈、昆百大商圈等七大商圈,吃喝玩乐购,满足一站式家庭生活需求。
2、学校丨学府在侧,全周期优学系统 区域规划全成长周期优学系统,高新一小,武成小学、市三幼等知名学校近邻。云铜中学、云铜小学、云师大附小、先锋小学等学府林立。
3、医疗丨名优医疗,健康家人护航 项目距离延安医院高新分院约500米,距离阜外医院约2.6公里;距离昆医附二院(工人医院)约5公里;省红十字会高新医院、省急救中心、五华区人民医院(三甲)等知名医院均可便捷通达。
4、生态丨六大公园,悦享诗意栖居 项目周边两山四公园环绕,畅享生态自然 两山:棋盘山、观音山 四园:棋盘山森林公园、翠峰公园、郊野公园、市政公园
四、义承金川府必买十大理由 ------------------------------------------ 1、比无可比,1.83超低容积率 1.83超低容积率规制,墅区容积率低至1.0,区域内比无可比。规制花园洋房、生态叠墅两大产品,充分满足采光需求,生活更私密惬意。
2、绝版臻品,洋房叠墅社区 洋房/叠墅低密社区,不含任何回迁安置房。打破传统高楼林立的城市格局,居住更舒适。
3、内外双景,私藏城市生态 以“伴山林语”为主题,通过一环、两轴、两园、三苑、八巷的整体景观布局,营造外闹内雅、游历式的东方山水森林社区。三重礼序,构建尊崇的归家体验;四幕场景,游历园林的四时之美。
西南侧代建约20000m²绿地公园,以“嗨FUN”为主题,打造一个高颜值、全龄段、多元化的运动休闲公园。
4、超宽楼距,至高36米楼高 楼栋间距最宽超30米,更通透,更私密。建筑高度不超过36米,通风采光更优越。
5、南北通透,1梯2户纯板 1梯2户纯板式住宅,南北通透,多开间朝南,采光优越,四季明媚。
6、超高拓展,主城绝无仅有 低公摊、高赠送、高实得、高拓展,所见即所得,性价比至优之选。
7、高配产品,定义舒居生活 户型方正实用,无浪费空间。洋房横厅设计普遍超6米,配双阳台;叠墅自带花园(或星空露台),超高拓展空间。
8、住户更少,纯粹邻里圈层 低密品质社区,城市塔尖首选。住户更少,流动人口更少,社区更安全,邻里圈层更纯粹。
外部优势 9、双城交汇,升值潜力无限 坐落于西北新城与高新区的黄金汇聚点,西三环、海源北路两大主干道交汇,坐拥高新区多年醇熟配套,享受西北新城快速崛起的发展红利。 10、全能配套,一站式商医教 ??交通便捷:周边拥有8条运营公交线,毗邻地铁4号线(已开通)、7号线(规划中)。 学府林立:与高新一小一路之隔,武成小学、市三幼等知名学校在侧,区域规划全成长周期的优学系统。 名优医疗:距延安医院高新分院约500米;距阜外医院约2.6公里;距昆医附二院(工人医院)约5公里;省红十会高新医院、省急救中心、五华区人民医院(三甲)等知名医院均可快速畅达。 繁华商业:距首创奥特莱斯约500米,10分钟生活圈内,汇聚西城时代、吾悦广场、宜家、昆百大等七大商圈。
五、在售产品鉴赏
义承金川府售楼处电话☎:0871-65658881【售楼处已认证】☘☘☘☘
义承金川府售楼中心电话☎:0871-65658881【售楼处已认证】☘☘☘☘
义承金川府展示中心电话☎:0871-65658881【售楼处已认证】☘☘☘☘
义承金川府营销中心电话☎:0871-65658881【售楼处已认证】☘☘☘☘
金牌置业顾问:18087748759
声明:本文由入驻焦点开放平台的作者撰写,除焦点官方账号外,观点仅代表作者本人,不代表焦点立场。
